Opis izdelka
splakovalne količine
Skrite pritrditve
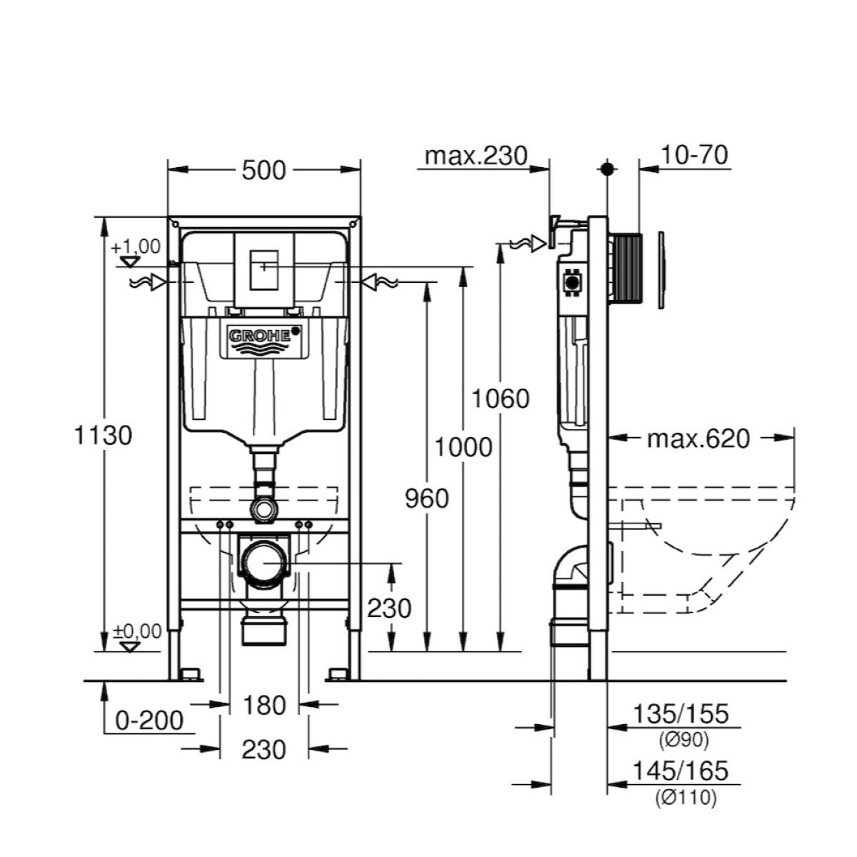
Suhomontažni element za stenski WC GROHE Rapid SL set 3 v 1 s podometnim splakovalnikom, tipko in stranskimi nosilci. Za montažo na steno ali predelne stene. Izoliran proti kondenzaciji, zvočna izolacija GROHE Whisper, preprosta montaža GROHE QuickFix.
- Blagovna znamka - Grohe
- Tip izdelka - Podometni splakovalnik
- Material - Kovine, plastika
- Oprema - okvir / kotliček za talno oblogo RAPID SL 38528001, aktivirna tipka Skate Cosmopolitan 38732000 v krom barvi, pritrdilni vijaki 3855800M
- Širina - 500 mm
- Končne višine montaže - 1130 mm
- Nastavitev višine - 200 mm
- Dotok vode - z leve / desne / zadnje strani
- Splakovalne količine - 6 l / 9 l (sistem GROHE EcoJoy)
- Garancija - 5 let (splošne informacije, garancijski list)










